r+2
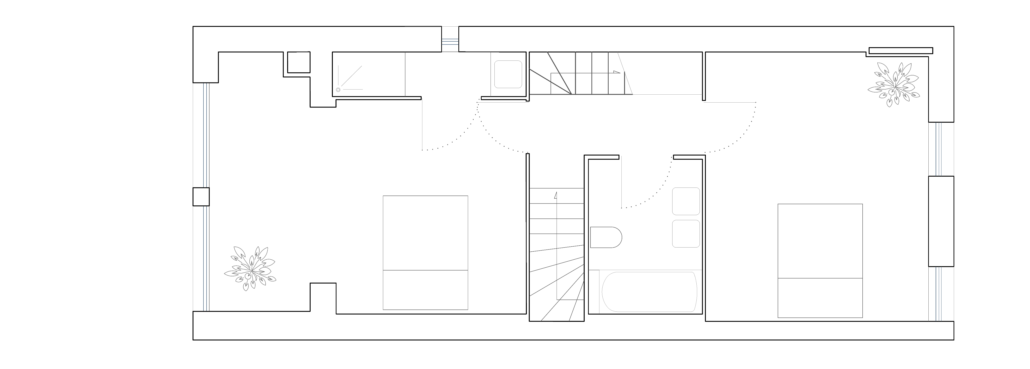
Rénovation complète d’une maison individuelle type échoppe bordelaise. Création d’une chambre supplémentaire avec niches d’aménagement sous les combles. Décloisonnement de l’espace de vie en rez de chaussé, et ouverture de la façade côté jardin pour un apport de lumière plus conséquent.
Surface :
État : Chantier livré
Budget : 00 000€



