avant
après
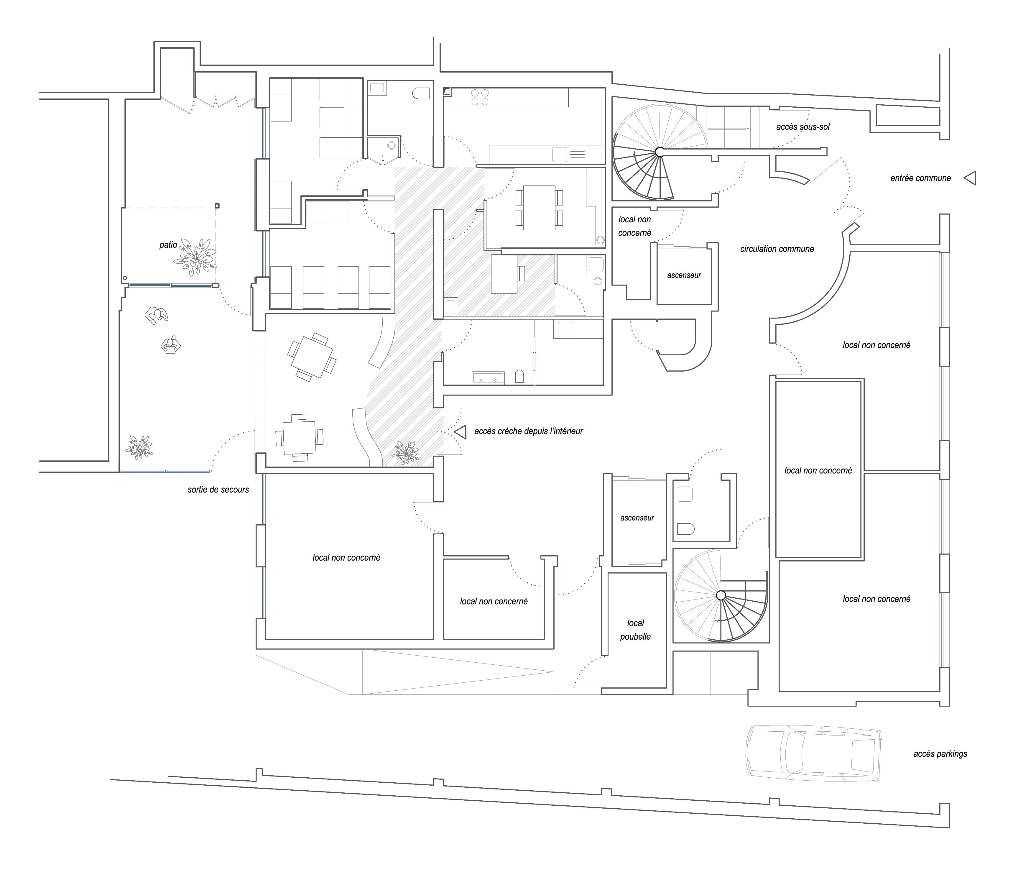
Réhabilitation d’un ancien cabinet de radiologie situé au RDC d’un complexe médical en une micro crèche pouvant accueillir environ 10 enfants. Desserte de la crèche depuis la circulation commune. Création d’espaces de dortoir, un espace de jeux, d’accueil, ainsi qu’un ensemble d’espace réservé à l’administration. Ouverture du patio de façon à bénéficier d’un espace extérieur couvert.
Surface : 000m²
État : Chantier livré
Budget : 00 000€

